草津市の新築一戸建ては
京都市の不動産専門の建都へ

本日の公開物件
565
本日の公開物件数3,824
  1. おススメ!売主物件特集 KENTOの自慢!情報充実の売主物件!
  2. 京都市のこだわり物件特集 京都に住むならこんなトコ!

  3. 京都市の物件トピック一覧 イイネがいっぱい!設備も充実!

  4. 京都市のエリア別物件一覧 住みたい場所から絞り込む♪

  5. 新着物件一覧 更新日:2021年02月17日
  6. オープンハウス予定一覧 「ちょっと見てみたい」もOKです♪
  7. お問い合わせ・内覧希望 京都市内の不動産なら何でもご質問ください!
トップページ京都市の新築一戸建て草津市西矢倉3丁目B号棟 未完成
新築一戸建て:未完成 情報更新日:2025/10/05 次回更新予定日:2025/10/23

限定2棟の新規分譲地!JR『南草津』駅徒歩14分

TEL:075-711-5149 (左京店)
印刷
資料請求
内覧予約
物件番号
197123
※お電話では物件番号をお伝えください♪
物件名
草津市西矢倉3丁目B号棟 未完成
所在地
滋賀県草津市西矢倉3丁目B号棟
アクセス
  1. 【JR琵琶湖線】南草津駅徒歩14分
土地面積
149.85 m² (45.33坪)
建物面積
98.01 m² (29.65坪)
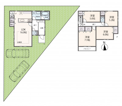
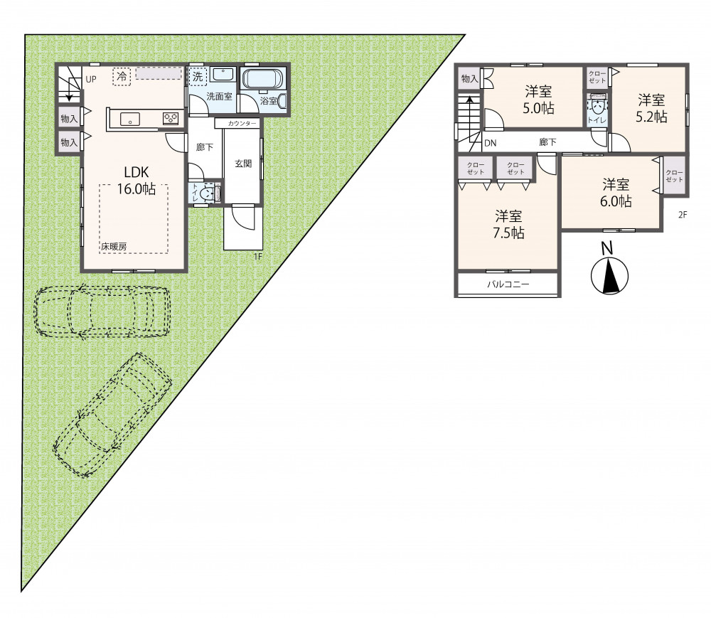
間取り
4LDK
備考
駐車場付き 床暖房付き システムキッチン 浴室乾燥機 メルディアDC 2台以上駐車可
  1. 床暖房・食器洗浄乾燥機・浴室暖房乾燥機etc設備充実
  2. 駐車2台可能!
  3. 玄関部分広々ゆったりしています♪

草津市西矢倉3丁目B号棟 未完成の学区

矢倉小学校
高穂中学校
物件番号
197123
※お電話では物件番号をお伝えください♪
物件名
草津市西矢倉3丁目B号棟 未完成
所在地
滋賀県草津市西矢倉3丁目B号棟
アクセス
  1. 【JR琵琶湖線】南草津駅徒歩14分
物件価格
4,380万円
土地面積
149.85 m² (45.33坪)
建物面積
98.01 m² (29.65坪)
私道面積
約14.58 m² (約4.41坪)
築年月
2026年1月完成予定
建築確認番号
確認サービス第KS125-6120-52663号
間取り
4LDK
建物構造
木造
建蔽率
50%
容積率
80%
地目
宅地
接道
  • 西側 幅員約4 m の公道 に 約19.3 m 接面
都市計画
  • 市街化
用途地域
1種低層住専地域
土地権利
所有権
取引態様
媒介
現況
未完成
引渡時期
相談
設備
上水道 / 下水道 / 都市ガス / カースペース / 電気
その他備考

※掲載されている物件データが現状と異なる場合は現状を優先します。

※地図の場所は、おおよその場所です。実際の物件住所とは異なる場合があります。
TEL:075-711-5149 (左京店)
印刷
資料請求
内覧予約

お問い合わせ・資料請求・内覧予約

物件名※必須
197123 : 草津市西矢倉3丁目B号棟 未完成
お名前※必須
フリガナ※必須
お電話番号※必須
-
-
郵便番号※必須
ご住所※必須
メールアドレス※必須
お問合せの種類※必須
資料のお届け方法※必須
ご希望日時※必須
お問合せ・ご相談内容※任意
利用規約※必須
個人情報の取扱いについて

弊社は積極的に個人情報保護に取り組んでおります。こちらのフォームにつきましても個人情報としてお取り扱いさせて頂きます。なお、フォームのご送信をもちまして個人情報のご提供にご同意いただいたものと理解させて頂きます。送り頂いた情報は以下の目的で使用させて頂きます。

  1. 不動産の売買、賃貸、仲介、管理等の取引に関する契約の履行、及び情報、サービスの提供。
  2. 上記1の利用目的の達成に必要な範囲での、個人情報の第三者への提供。
  3. 当社が取り扱う商品に関する契約の履行、情報、サービスの提供。
  4. 上記1、3の商品・情報・サービス提供のための郵便物、電話、電子メール等による営業活動、及びアンケートのお願い等のマーケティング活動。顧客動向分析または商品開発等の調査分析。
  5. 情報、サービスの提供は、ご本人からの申出がありましたら取り止めさせていただきます。

送信頂きました個人情報のお問い合わせまたは開示・訂正・削除のご請求は下記までご連絡ください。

建都住宅販売株式会社
TEL : 075-411-0700

※携帯電話の「ドメイン受信機能」を利用されている方は「kento.jp」をドメイン指定してください。セキュリティ設定をされていて、返信メールをお届けできない場合はお電話にてご連絡いたします。

閲覧履歴 閲覧履歴一覧を見る →

京都の不動産オープンハウス情報

京都の不動産オープンハウス情報

事前にご予約いただき、ご来場いただいたお客様にはもれなくQuoカード500円分(1家族様1枚限り)をプレゼンさせていただきます!

京都の不動産オープンハウス情報

オープンハウスでは、お家の設備や仕様を具体的にご確認いただけることはもちろん、WEBではわかりにくい立体的な情報をお伝えすることができます!また、オープンハウスのご予約をいただけますと、優先的に内覧していただけますのでゆったりご見学いただけますし、資金計画のご相談にもその場で対応させていただきます。

もちろんご見学いただいた物件だけではなく、今後ご希望に添える物件が出てきた時や、非公開の物件情報を優先的にご紹介させていただきますので「この物件ちょっと見てみたい」と思われましたら、ぜひお気軽にご予約ください♪

突然のご来店も大歓迎!お気軽にご相談ください! KENTOの店舗一覧

  1. 京都市上京区本店

    本店
    お気軽にお電話ください! TEL.075-415-0002

    〒602-0936
    京都市上京区今出川通新町下ル西無車小路町594-1 (Googleマップはこちら→)

    ●地下鉄 今出川駅より徒歩5分

    本店の紹介ページへ→

  2. 京都市左京区左京店

    左京店
    お気軽にお電話ください! TEL.075-711-5149

    〒606-8012
    京都市左京区山端滝ヶ鼻町4-8 (Googleマップはこちら→)

    ●叡山電鉄修学院駅より徒歩7分市バス修学院離宮道停より徒歩1分

    左京店の紹介ページへ→

  3. 京都市左京区販売部 仲介課

    販売部 仲介課
    お気軽にお電話ください! TEL.075-711-6162

    〒606-8012
    京都市左京区山端滝ヶ鼻町4-8 (Googleマップはこちら→)

    ●叡山電鉄修学院駅より徒歩7分市バス修学院離宮道停より徒歩1分

    販売部 仲介課の紹介ページへ→

  4. 神戸市神戸店

    神戸店
    お気軽にお電話ください! TEL.078-335-7505

    〒650-0033
    神戸市中央区江戸町104番地 403号室 (Googleマップはこちら→)

    ●三ノ宮駅より徒歩約13分

    神戸店の紹介ページへ→

  5. 大阪市大阪店

    大阪店
    お気軽にお電話ください! TEL.06-6318-8631

    〒532-0004
    大阪市淀川区西宮原二丁目1番3号 SORA新大阪21 3階 (Googleマップはこちら→)

    ●新大阪駅より徒歩7分

    大阪店の紹介ページへ→